Opdrachtgever

Onderwijsstichting de Nieuwe Linde

 

Aandeel vandrunen pbm

Projectleider

 

Architect

Ntb

 

Constructeur

Ntb

 

Adviseur Werktuigbouwkundig

W.inst Tilburg

Adviseur Elektrotechniek

LQS E-advies

 

Projectmanagement

vandrunen pbm

 

Aannemer

Ntb

 

Planvoorbereiding / Realisatie

2024 – 2026


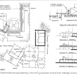
  • De Nieuwe Linde impressie

    De Nieuwe Linde impressie

  • De Nieuwe Linde

    De Nieuwe Linde

  • De Nieuwe Linde

    De Nieuwe Linde